扫描上方微信号

xty95888

微信

LINE

Line

查看所有9张照片
一户建

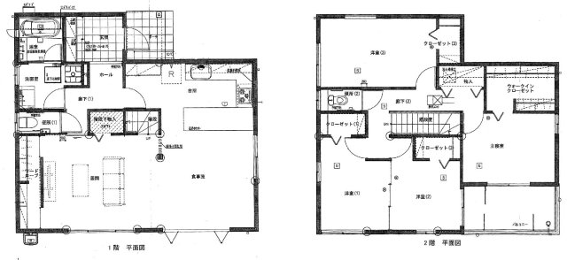
京都府木津川市州见台自住一户建 2层5LDK

2025年04月25日 挂牌

约183.8万元

170.17㎡
5LDK
2层
31.52万日元/㎡
2013年9月(12年)
-
房屋介绍
基本信息
房屋介绍
房间信息

约183.8万元

房屋介绍

交通

木津车站步行48分钟

地址

京都府木津川市州见台6丁目2-113

基本信息

投资信息

价格

3,980万日元

平米单价

31.52万日元/㎡

平米单价

31.52万日元/㎡

年化收益:

-

管理费:

-

修缮公积金:

-

土地产权:

房屋现状:

自住

交付日期:

-

建筑信息

建筑面积:

126.26㎡

構造:

轻型钢骨结构

年代:

2013年9月(12年)

楼层:

2层

朝向:

-

户型:

5LDK

土地信息

土地面积:

170.17㎡

建筑覆盖率:

建筑容积率:

地势:

区域用途:

推荐用途:

-

城市规划:

联系我们

您会在一个工作日内得到置业顾问的联络

(必填)
(必填)
(选填)
(选填)
(必填)
(选填)
已阅读并同意《服务协议》与《隐私保护相关政策

联系我们

您会在一个工作日内得到置业顾问的联络

(必填)
(必填)
(选填)
(选填)
(必填)
(选填)
已阅读并同意《服务协议》与《隐私保护相关政策

联系我们

您好,欢迎留下您的信息。我们会在一个工作日内与您取得联系。乐瀛日本地产全体祝您生活愉快。

目的 
姓名 
电话 
社交
邮箱 
留言 
已阅读并同意《服务协议》与《隐私保护相关政策

联系我们

目的 *
姓名 *
电话 *
社交
邮箱 
留言 
已阅读并同意《服务协议》与《隐私保护相关政策